BFG IMMOBILIER Agence
Télécharger la fiche
Nouveauté

Terrain à batir 455 m²

Fontcouverte (17100)
46 225 € Référence 026

A propos de ce bien

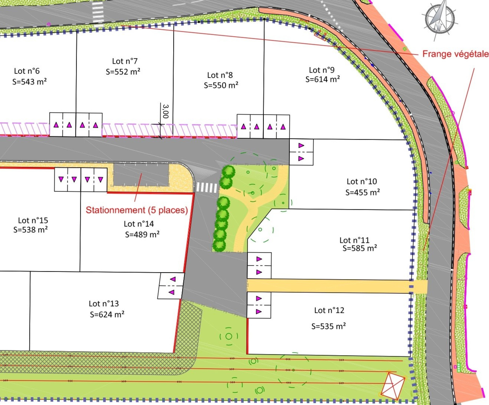
Aux portes de SAINTES, dans un environnement vert et calme et à 30 minutes des plages, BFG IMMOBILIER présente en exclusivité dans petit lotissement situé à proximité du centre bourg, terrain à bâtir viabilisé avec tout à l'égout, d'une superficie de 455 m².

Lot N° 10.

Libre de constructeur.

Zone UB.

Non soumis au DPE.

 

Les informations sur les risques auxquels ce bien est exposé sont disponibles sur le site Géorisques : www. georisques. gouv. fr

Caractéristiques de ce bien

  • terrain 455 m²

Diagnostics énergétiques

DPE
GES
DPE ANCIENNE VERSION

Informations financières

Prix de vente honoraires TTC inclus 46 225 €
Prix de vente honoraires TTC exclus 43 225 €
Honoraires TTC à la charge acquéreur 6.94 %

Autour du bien

  • Commerces et santé
  • Loisirs
  • Ecoles
  • Transports
  • Pratique

Calcul des mensualités

* Champs obligatoires